This includes the architectural decoration, electrical, water supply, drainage, ventilation, and air conditioning works for the ICU, DSA operating room, and rehabilitation hall. (For details, please refer to the drawings and bill of quantities).
Suihua First Hospital is a Grade III Class A general hospital in Suihua City. Located at the intersection of Beilin Street and Qingfeng Street, construction officially began on August 1, 2005, and it was completed and put into use on September 1, 2008. The first floor houses a DSA clinic, registration and payment area, pharmacy, emergency department, general oncology department, CT scanner, MRI machine, and inpatient/outpatient registration center. The second floor includes internal medicine, obstetrics and gynecology, ultrasound, endoscopy center, functional testing department, laboratory center, and radiology department. The third floor includes ophthalmology, dentistry, otolaryngology, surgery, central operating room, pathology department, blood transfusion department, outpatient operating room, and central ICU. The upper floors house 22 clinical departments, including internal medicine, surgery, obstetrics and gynecology, ENT, and VIP wards.
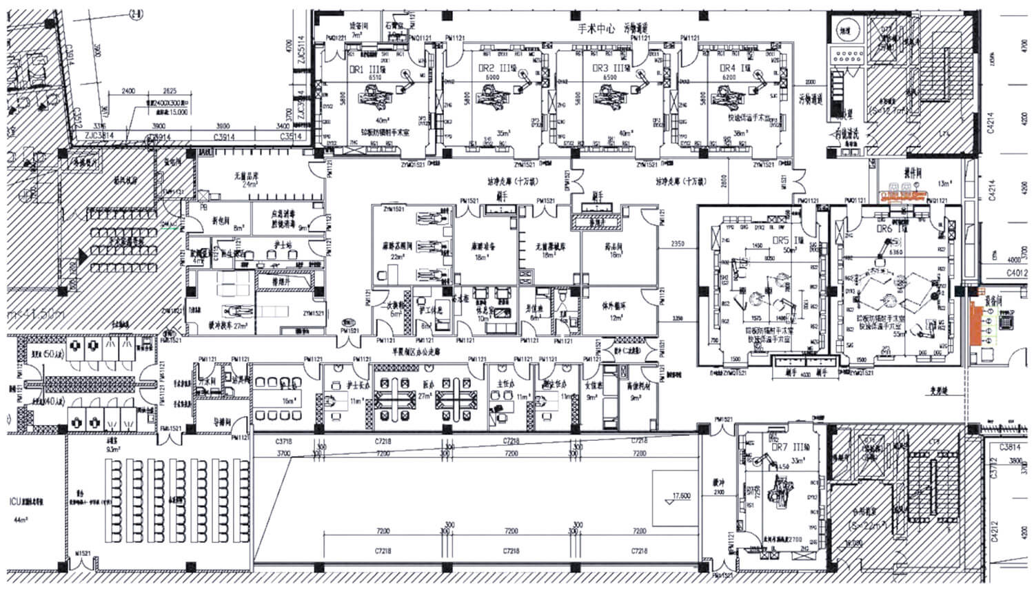
Suihua First Hospital New Site Medical Resource Enhancement - Cleanroom Engineering Project (Tender Project No.: HTCL-ZB-263012)
This project, approved by relevant authorities and funded through self-raised capital, aims to significantly upgrade the medical infrastructure of the Suihua First Hospital at its new location. The tendering process is initiated by Suihua Hemei Urban Housing Investment Co., Ltd., and is now open for public bidding.
Scope of Work:
The project encompasses the construction and renovation of critical medical facilities, specifically focusing on cleanroom environments. Key components include:
(For detailed specifications and quantities, please refer to the project drawings and Bill of Quantities.)
This project was handled by our experienced cleanroom construction team, which consisted of 5 project managers, 15 engineers, and 40 skilled workers. All members hold relevant certifications and have received professional cleanroom construction training, ensuring project quality and timely completion.

Facing the harsh winter conditions of Suihua (-30°C), the Deiiang team intervened early, holding over 15 rounds of technical meetings with medical departments, equipment division, ICU & interventional radiology to define:
MEP clash & energy challenge: Dense existing pipes required 3D BIM modelling with 200+ clash detections. We layered ducts, cables, and medical gas lines with “main first, branch later.” Our proprietary Deep Cold Heat Recovery System combined with VAV + HEPA filters reduced predicted winter thermal load by 35%.
Coordination with civil works & vendors: DSA rooms aligned exactly with C‑arm paths and pendant positions – we achieved millimeter-level accuracy (±1mm tolerance) through three‑party pre‑meetings and on‑site laser marking, ensuring one‑time embedding success. An ICU mock‑up room validated all 20+ outlet heights before full installation.
Clean finishes & MEP sequence: Adopting a “conceal first, close after inspection” protocol – each duct and cable section underwent self-inspection and third-party checks before panel closure. Our duct leakage tests outperformed the national standard by 20%. All 45 workers wore disposable shoe covers & masks; HEPA installation was executed by Deiiang-certified senior technicians, with full photo records.
✔ Strict air tightness control: Utilized Deiiang's VHP-resistant HPL panels; all penetrations sealed with zero dust residue left. Every flange connection double-checked.


HVAC & pressure cascade: Adjusted 50+ VAV boxes and dampers to achieve stable pressure gradients (DSA OR +15Pa > Buffer +10Pa > Corridor +5Pa). Measured air changes reached 25 ACH in the DSA room, exceeding the 20 ACH standard.
Cleanliness & noise: Third-party verification confirmed ISO Class 7 (Class 10,000) for the DSA room and ISO Class 8 (Class 100,000) for the ICU. Noise levels were controlled at 48dB(A), creating a quiet healing environment. Smoke visualization confirmed stable unidirectional flow.
Functional drills: Simulated emergency ICU transfers, interventional procedures, and heavy rehab hours – fine‑tuned door interlock delays (5 seconds) and local damper positions. The project passed final acceptance with zero non-conformities.
The core takeaway: clean engineering is never “just installing an AC and some panels” – it requires comprehensive understanding of medical workflows, behaviour and MEP systems. Leveraging Deiiang’s prior experience in over 10 similar Grade-A hospital projects in Northern China, we anticipated potential clashes, pressure instability, noise excess – through front‑end design optimisation and meticulous construction, rework was minimised.
For the owner, what they receive is not just a “delivered on‑time project”, but an ICU and DSA environment that remains stable for years – one that medical staff trust and feel comfortable using daily. This reflects Deiiang's commitment: transforming "Compliant Engineering" into "Excellence in Operation."
Project references: 《General hospital design code》, 《Clean operating department construction code》, 《Ward clean technology code》. All systems integrated with main hospital MEP.