In June 2025, the construction of the Shandong Zhongxing Food Additives project, invested in by the Shanghai Dyestuff Research Institute, officially commenced. The project is expected to be completed in early 2026, with an annual production capacity of 3,000 tons of food additives.
Shanghai Dyestuff Research Institute Co., Ltd. is a modern, technology-driven enterprise specializing in food additive colorants, integrating research and development, production, sales, service, and testing. With 70 years of exquisite production techniques, sophisticated production equipment, and advanced testing methods, it has created the renowned Chinese food additive brand – "Lion Head". "Lion Head" brand food additive colorants meet international advanced standards and are widely used in the food, beverage, pharmaceutical, cosmetics, daily chemical, and feed industries.
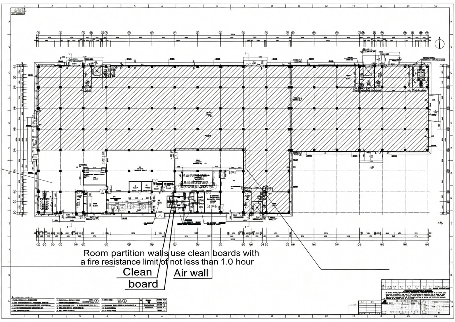
Project Summary:Invested by the Shanghai Dye Research Institute, this project marks a significant milestone in establishing a high-standard clean manufacturing facility for food additives. The Shandong Zhongxing Food Additive Construction Project officially commenced in June 2025, with completion and operation scheduled for early 2026. The facility is designed to achieve an annual production capacity of 3,000 tons.
Key Highlights:Adhering to strict international food safety standards, the facility incorporates advanced cleanroom technologies and automated production systems. Once operational, it will serve as a modern manufacturing hub that seamlessly integrates R&D translation with large-scale production, ensuring the supply of safe, high-quality food additives to the market.
This project was handled by our experienced cleanroom construction team, which consisted of 5 project managers, 15 engineers, and 40 skilled workers. All members hold relevant certifications and have received professional cleanroom construction training, ensuring project quality and timely completion.



