wap_menu MENU
X

A6 Military Products R&D Laboratory, CSCIAS

**Project Description:** Deiiang™, in partnership with SIAT, delivers a 1,200m² advanced defense R&D laboratory, equipped with cutting-edge systems for military and dual-use tech development. The facility drives military-civilian integration, aligning with national security goals through precision innovation and collaborative defense solutions.

Project address
A6, E-commerce Park, Daxing Road, Fengtai District, Beijing
Industry
Completed Laboratory
Building area
1200㎡
ISO Class
ISO9
Temperature
22-26℃
Humidity
<45%

Client Profile

The Shenzhen Institutes of Advanced Technology (SIAT), Chinese Academy of Sciences, was established in 2006. Jointly built by the Chinese Academy of Sciences, the Shenzhen Municipal People's Government, and the Chinese University of Hong Kong, it is a national strategic scientific and technological force deployed by the Chinese Academy of Sciences in the Guangdong-Hong Kong-Macao Greater Bay Area. As Shenzhen's first national research institution, SIAT has innovatively constructed a micro-collaborative innovation ecosystem integrating research, education, industry, and capital, with research as its core. It adheres to focusing on the needs of scientific and technological innovation, efficiently promoting the integrated design and advancement of scientific research and industrial development. SIAT focuses on the goals of "four firsts" and "two accelerations and one effort," striving to seize the commanding heights of science and technology. It prioritizes three main research directions: medical imaging equipment and scientific instruments, synthetic biology and biomanufacturing, and integrated circuit materials and packaging, as well as several emerging directions such as brain-computer interfaces and intelligent systems, brain analysis and primate models, medical devices and equipment, intelligent medicine and health data, and advanced materials and carbon neutrality, continuously fostering new technological momentum.

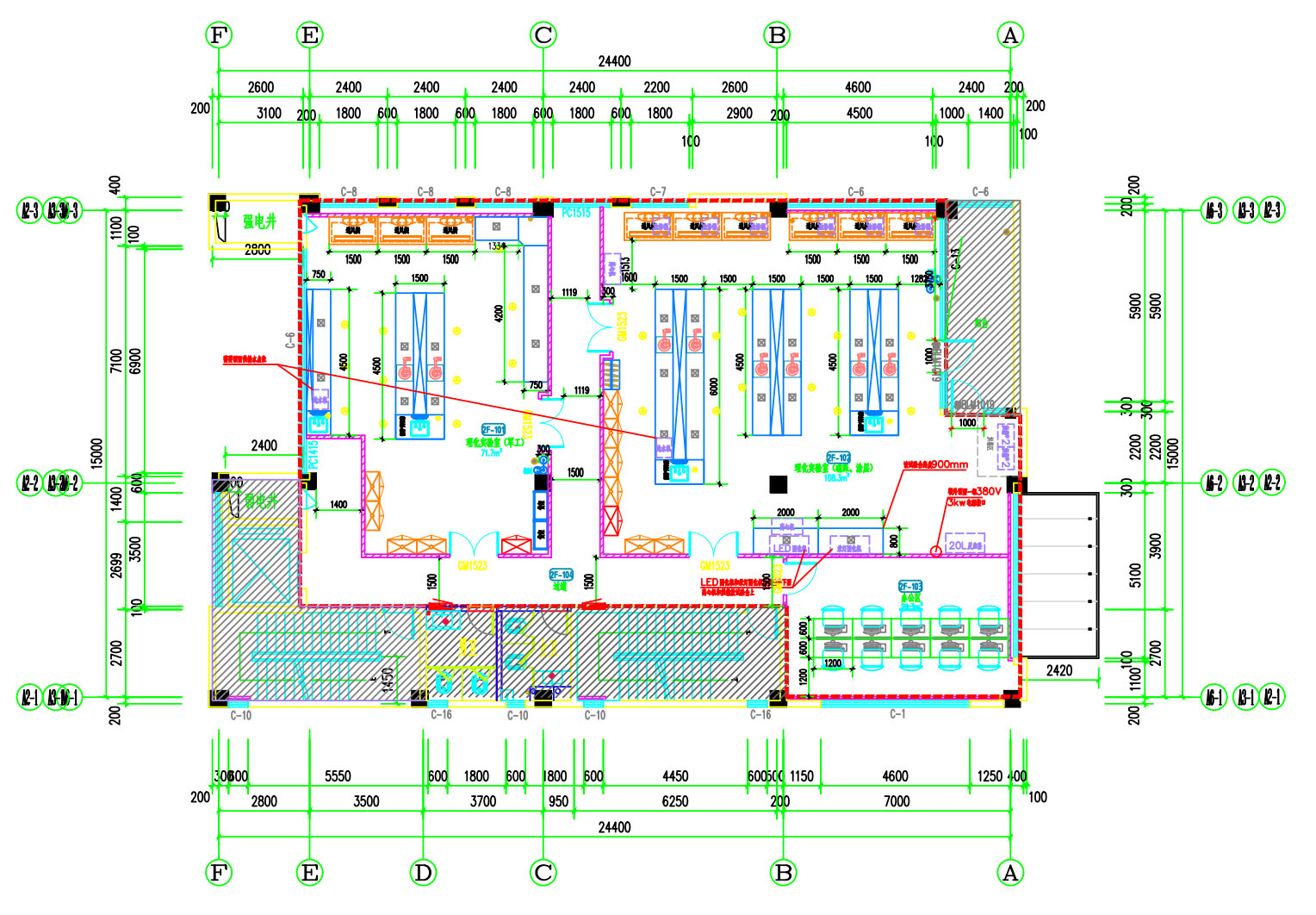
Layout diagram

PROJECT COMPLETION GALLERY

Showcasing our latest completed projects with attention to detail and quality craftsmanship.

&copy; 2024 Project Completion Gallery. All rights reserved.

Jiangxi Construction Engineering

This project was handled by our experienced cleanroom construction team, which consisted of 5 project managers, 15 engineers, and 40 skilled workers. All members hold relevant certifications and have received professional cleanroom construction training, ensuring project quality and timely completion.